Back to All Events

Shortstack Mississippi - Virtual Presentation for New Residential Building at 1017 N Revere St.

  • Virtual Presentation 1017 N Revere Street Portland, OR, 97227 United States (map)

Works Progress Architecture is working with property owners on a new residential building at 1017 N Revere St. This project must comply with the Neighborhood Contact II Requirements per City of Portland Zoning Code.

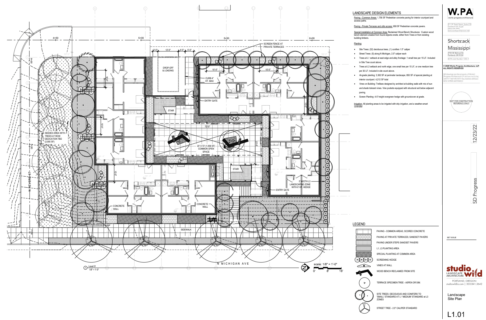
The project includes construction of a new 30,000 sf, 4-story residential development, consisting of 36 units. With a goal to increase missing middle housing, a combination of 1-bed, 2-bed and 3-bed dwellings will be provided, as well as a targeted mix of MFI affordability. The development is designed with two buildings organized around a central courtyard and accessed via open air balconies and stairs. A partial basement accessed off N Michigan Ave houses shared laundry, bike storage, and trash, along with a variety of utility support spaces. The ground floor consists of nine units, surrounded by a variety of active outdoor spaces, providing both communal and private areas for residents. The remaining three floors are all dwelling units. Please see the site plan for more information.

At this time we have arranged for an on-line/virtual meeting, to present the project to the public. If you would like to attend, below are instructions outlining day/time and log in:

Shortstack Mississippi
Jan 25, 2023, 6:00 – 7:00 PM

Please join my meeting from your computer, tablet or smartphone.
https://meet.goto.com/804693269

You can also dial in using your phone.
Access Code: 804-693-269
United States: +1 (646) 749-3122

Get the app now and be ready when your first meeting starts:
https://meet.goto.com/install

Should you have any questions in the meantime, general inquiries can be emailed to jessamyn@worksarchitecture.net, or made via phone or mail to the address and number below.